株式会社グリーンえのきでは住み良く、環境に配慮した居心地のよい住宅をお客様へお渡しできるようがんばっております。
当社では新居を構えたいと考えるお客様からの相談から、設計、施工、保守、その他住宅に関わる全ての工程、手続きをお任せいただけます。
お客様にご満足いただける住宅を提供できるよう、住宅の新築、増改築は安全で高機能な最新の工法にて行っております。

株式会社グリーンえのき
埼玉県川越市小中居985-1
TEL:049-235-0036

Choose your favorite house!!

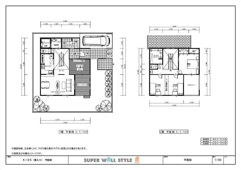
img_02.jpg

class

 趣味を生かして、教室を開いてみたい。
自宅で小さな店を開いてみたい。子育て
に忙しいママにもいつかは・・・と思っている夢があるのでは?そんな思いを実現するのは家づくりを考えている今なのかもしれません。さぁ思い切って夢をカタチに。そんな家づくり、はじめましょう!

class   東入プラン

 ダイニングと兼用の教室で、お客様の動線を分けて来客用のクローゼットを設けて使い勝手を向上!部屋を兼用してオシャレに広々と使いましょう!

 

class   南入プラン

 

 玄関のそばに独立する教室スペース。汚れても掃除しやすく彫刻、ガラス細工などのクリエイティブな作業向き。本格的な教室やショップを始めたいママに必要な専用スペースです。

class   北入プラン

 庭を向いた開放的なカウンター付きキッチンにカフェのようなタイル張りの教室。ウッドデッキをはさんでひろびろ使えるリビングダイニングな空間でティーブレイクも!

class   西入プラン

 対面カウンターでお料理やお菓子教室、ワイン教室などに最適プラン。大きな吹き抜けのタタミルームが素敵な間取り。

kids 

 子供たちの成長過程に応じて、暮らしのスタイルも変化する子育て期。そんなご家庭にぴったりの、できるだけ仕切りを少なくした大空間の家。子育てに忙しいミセスをサポートする工夫やアイデアをいっぱいプラス!いつも家族一緒が楽しい!家族みんなで子育ても楽しめる!そんな家づくりをはじめませんか!

kids               東入プラン

 汚れるから「あれはダメ!これはダメ!」と注意されない、子供たちが自由な発想で遊べるKIDS土間。温度差が少なく換気調整も容易な高気密住宅ならではのスペース。冬でも快適にすごせるユーティリティな居場所。

 

kids     南入プラン

 

 泥んこKIDSがバスルームへ直行!。サッカーの練習で泥だらけになって帰ってくる子供の動線を考えた設計で、洗面、洗濯機、お風呂とお部屋を汚さずママの仕事もラクラク快適!LDKとの続き間で、ホームパ−ティにも使えるセカンドリビング!

kids     北入プラン

 いつも、いつでも子供たちに目が届く!玄関からリビング、KIDS土間空間まで家の中心にあって子供たちの様子が見渡せるオープンスタイルキッチン。家事をテキパキこなしながらコミュニケーションもしっかり!!

kids     西入プラン

 ダイニングと2階のファミリーコーナーは「縦の続き間」で互いの居場所を確認できて、しっかりと各居室を独立させ家族のプライバシーを確保。縁側的なKIDS土間は雨でも子供たちが遊べる楽しい空間!

pets 

 大好きなペットと仲良く暮らそう!家族みんなの大好きなペットは仲のいい友達のような存在でありかけがいのない家族の一員。そんな大事なペットと過ごすためにひと工夫こらした間取り。家族もペットも仲良く暮らせる。そんな家づくりはじめましょう!!

pets           東入プラン

 ペット専用の“ワン”ルーム 家族の近くでのんびり快適。リビングとダイニングの間にあって、いつも家族と一緒。そこはワンちゃんにとってきっとお気に入りの場所に。中庭ともつながって子供たちとの遊び場としてもぴったり!!

 

pets     南入プラン

 

 書斎コーナーに居ながら、ワンちゃんとふれあえる。ホームドッグカフェ的なテラス。ペットとヒトとの生活動線をしっかり区切り、互いに快適な暮らしを考える。

pets     北入プラン

 吹き抜けとドッグカフェがつながった!!家のどこにいてもワンちゃんの存在を確認できる広々快適空間。楽しいお散歩から帰ってきたらキレイにグルーミング!!愛犬用シャワーはブラッシングや足洗いには必須!!

pets     西入プラン

 しっかりゲートでキッチンや寝室には侵入禁止!!ペットと仲良く暮らすヒケツは生活スペースを明確に区分けすること。料理中にワンちゃんがまとわりついたり寝室が毛だらけになったりしないようキッチンや階段には進入禁止ゲートを設置!

zero  

 快適に暮らして省エネしよう!毎日の暮らしの中で、もっと太陽や風などの自然の恵みを生かして少しでもエネルギーを節約する住まい。ガマンではなくエコで快適に地球にやさしく、光熱費ゼロを目指す!

zero         南入プラン

 光と風をたっぷり取り入れ、大きなワンルームLDKと2か所の吹き抜けで空気を循環。家の中を快適な環境に保つ。キッチン上部は天窓で電気を使わず明るさアップ!